Pompselectie, het kan veel beter.

icon.highlightedarticle.dark Tech & Onderhoud
34 bekeken Laatste wijziging: 9 mei 2023
Article image of: Pompselectie, het kan veel beter.

Het lijkt allemaal zo eenvoudig en je hoort het ook veel in de praktijk:” we doen het altijd zo en het gaat toch goed”. De pomp is nog steeds heel en de pompinstallatie doet het toch goed!
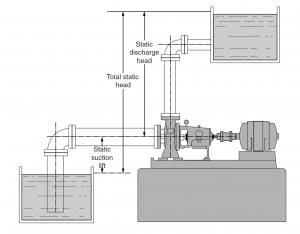
Na onderzoek in de industrie blijkt dat 70% van alle pompen niet optimaal draaien! Het kan dus echt nog een stuk beter waarbij de levensduur van de pomp en pomponderdelen erg omhoog gaan en de energiekosten en onderhoudskosten erg naar beneden. Het selecteren van de juiste pomp voor een installatie is echt een vak waarbij een goede oplossing gevonden moet worden voor alle (rand)voorwaarden waaraan de pomp moet voldoen. Hierbij is voldoende theoretische kennis nodig waarna die kennis in de praktijk tot uitvoer gebracht moet kunnen worden. Hoe berekent u de NPSHa van de pompinstallatie, zodat cavitatie voorkomen kan worden? Hoe gaat u om met een afwijkende viscositeit van water? Dit alles kunt u leren in de praktijkgerichte cursus Pompberekening waarbij de cursusinhoud mede bepaald wordt door de technische wensen van de deelnemers. Aan de hand van veel praktijkopdrachten leer ik u stapsgewijs de juiste berekeningen te maken. Om u een indruk te geven hoe cursisten onze cursussen ervaren, kunt u kijken op onze website . Mocht u nog vragen hebben, dan kunt u mij altijd bellen of mailen. Voor de cursusdatum van 7 oktober zijn nog enkele plaatsen beschikbaar. Het maximum aantal deelnemers bedraagt 10 personen.

Geschreven door

Oveducon

Lees meer